Loft en venta en Parque Tecnológico - Zona Industrial, Tres Cantos, Madrid
Viviendas en Parque Tecnológico - Zona Industrial, Tres Cantos279.900 €
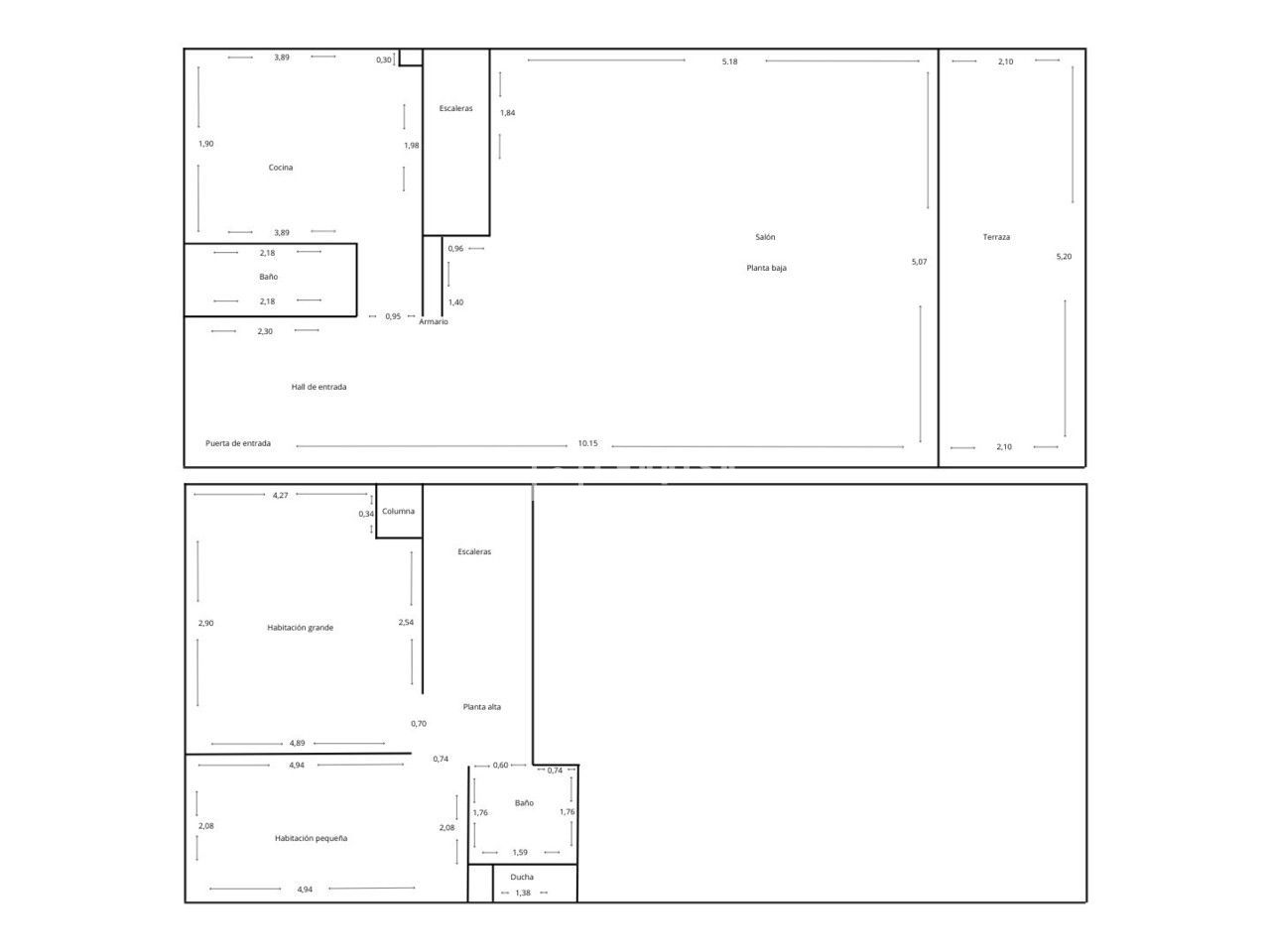
Galería de fotos
REDPISO vende EN EXCLUSIVA maravilloso loft en la Zona Industrial de Tres Cantos.
¿Buscas un espacio diferente, moderno y con estilo propio? Este loft en la zona industrial de Tres Cantos puede ser justo lo que estabas esperando. Un concepto abierto, lleno de luz y con carácter: el inmueble cuenta con dos habitaciones ubicadas en la planta superior, además de un aseo en la planta baja y un baño completo en la planta de arriba, ofreciendo así una distribución práctica y cómoda para el día a día.
La cocina independiente aporta un plus de privacidad y funcionalidad, manteniendo la armonía con el estilo moderno del conjunto.
¿Y lo mejor? Una terraza con vistas a la sierra, el lugar perfecto para relajarte, disfrutar del aire libre y contemplar el paisaje. La urbanización, además, pone a tu disposición jardines bien cuidados, una piscina donde desconectar y una pista de pádel ideal para liberar tensiones tras la jornada laboral.
Incluye además una gran plaza de garaje de 33,90 m² (altura 2,34 m, largo 9,05 m, ancho 2,56 m), con capacidad para dos coches pequeños o un coche y una moto, así como trastero, una gran ventaja para tu día a día.
El edificio es de las pocas fincas de la zona que dispone de gas natural, y cuenta también con gimnasio entre sus instalaciones comunes.
Otra ventaja destacable es la posibilidad de ampliar el loft para obtener una tercera o incluso cuarta habitación, ofreciendo opciones de crecimiento según tus necesidades.
Pero lo que realmente hace único a este loft es su ubicación privilegiada: en la zona industrial de Tres Cantos, con excelente comunicación y a un paso del Parque del Este, un pulmón verde que te conecta directamente con la belleza natural de Soto de Viñuelas. Ideal para amantes del deporte al aire libre, paseos en bici o simplemente para desconectar entre árboles y senderos.
Estilo, funcionalidad, zonas comunes de lujo y un entorno natural a tu alcance.
Vive diferente. Vive bien. Vive aquí.
Contáctanos y ven a descubrir tu próximo hogar. ¡Este loft tiene mucho que decirte!
Consulta la posibilidad de financiación con nuestro DEPARTAMENTO FINANCIERO DCREDIT.
Según el Real Decreto Legislativo 1/2007, de 16 de noviembre, los precios ofertados no comprenden los tributos (Impuestos de Transmisiones Patrimoniales), ni los gastos notariales y registrales relativos a la compra-venta, ni la comisión de intermediación que satisface el comprador.
| Cuota de comunidad: Consultar
Parque Tecnológico - Zona Industrial, Tres Cantos, Madrid
