Local Comercial en venta en Chorrillo, Alcalá de Henares, Madrid
Locales o naves en Distrito 3 - Chorrillo - La Garena, Alcalá de Henares41.000 €
Galería de fotos
Se traspasa negocio completamente montado, con todo el mobiliario y equipamiento incluido, sin salida de humos, listo para iniciar su actividad de inmediato. Ubicado en el barrio de El Chorrillo, en una zona de gran paso y excelentemente comunicada, con transporte público cercano y a pocos metros de la estación de Renfe. Anteriormente funcionó como cafetería, ideal para continuar con la misma actividad. Listo para empezar desde el primer día. ¡¡Infórmese sin compromiso!!

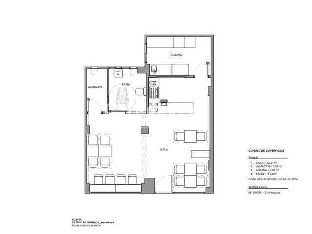
Plano| Cuota de comunidad: Consultar
Distrito 3 - Chorrillo - La Garena, Alcalá de Henares, Madrid
