cargando...

Local Comercial en venta en CALLE POZAS, Universidad, Centro, Madrid, Madrid

595.000 €

RP1292025143104

Concertar una visita Añadir a favoritos Conseguir financiación
Icono clic Calcula aquí la reforma de tu inmueble

Local Comercial en venta en CALLE POZAS, Universidad, Centro, Madrid, Madrid

OPORTUNIDAD

REF: RP1292025143104

Nº Visitas 243 20/10/2025
208 m² 1

Redpiso Malasaña Universidad VENDE un espectacular local CON LICENCIA DE BAR/CAFETERIA CON AFORO MÁXIMO DE 49 PERSONAS en una de las zonas con más vida de Madrid.

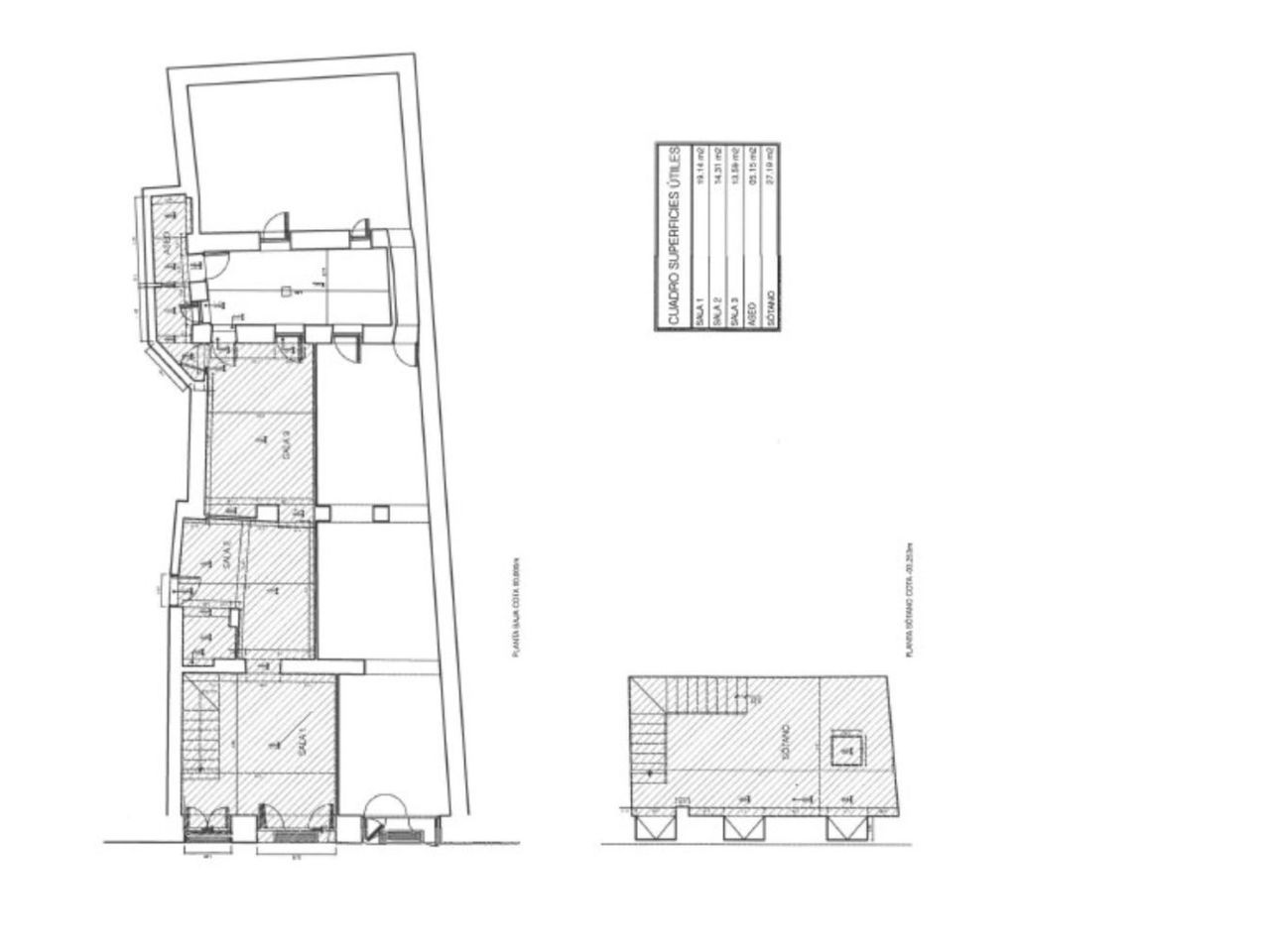
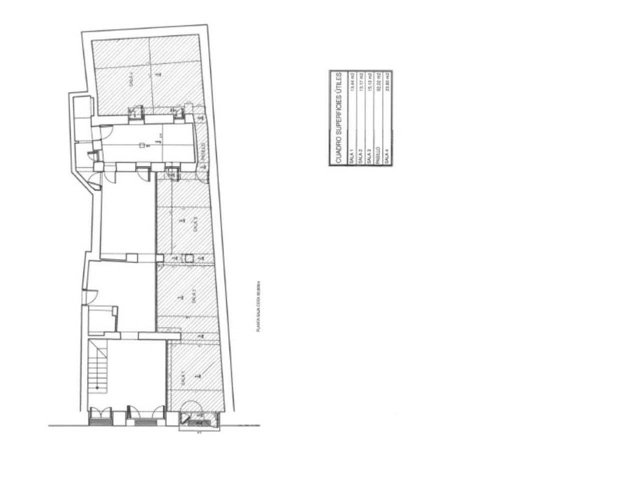
Se trata de dos locales actualmente unidos. El primero cuenta con 123 m² construidos y el segundo con 85 m² a pie de calle. Además, dispone de un sótano de unos 30 m², lo que aporta un espacio extra muy útil para almacén.

El local se distribuye en dos amplias salas, barra, aseos y tiene dos grandes ventanales que dan a la calle, además de la puerta de acceso. El cierre de persianas es de aluminio, y cuenta con aire acondicionado y calefacción eléctrica.

Ubicado en pleno corazón de Malasaña, una de las zonas más dinámicas y con mayor oferta cultural, gastronómica y de ocio de Madrid, este local representa una oportunidad excelente tanto para inversores como para quienes sueñan con abrir su propio negocio en una ubicación inmejorable.

COMUNIDAD: 57,92€ + 59,55€. IBI: 700€ APROX CADA LOCAL. No dejes pasar esta oportunidad única de emprender en uno de los barrios más emblemáticos y con más proyección de la ciudad.

Ponemos a tu disposición nuestro departamento financiero que obtendrá las mejores condiciones de financiación. ***GASTOS DE ITP 6% Y GESTIÓN NO INCLUIDOS*** Más inmuebles en nuestra página web www.redpiso.es

Ubicación aproximada

Características

Metros: 208 m²
Metros útiles: 135 m²
Baños: 1
Cal. energética: Calificación energética e
Consumo: 174 KW h/m² año
Emisiones: 35 Kg CO2/m² año
Estado: Perfecto Estado
Ascensor
Aire acondicionado
Tipo de suelo: Otros
Tipo de fachada: Mono Capa
Año de construcción: 1900